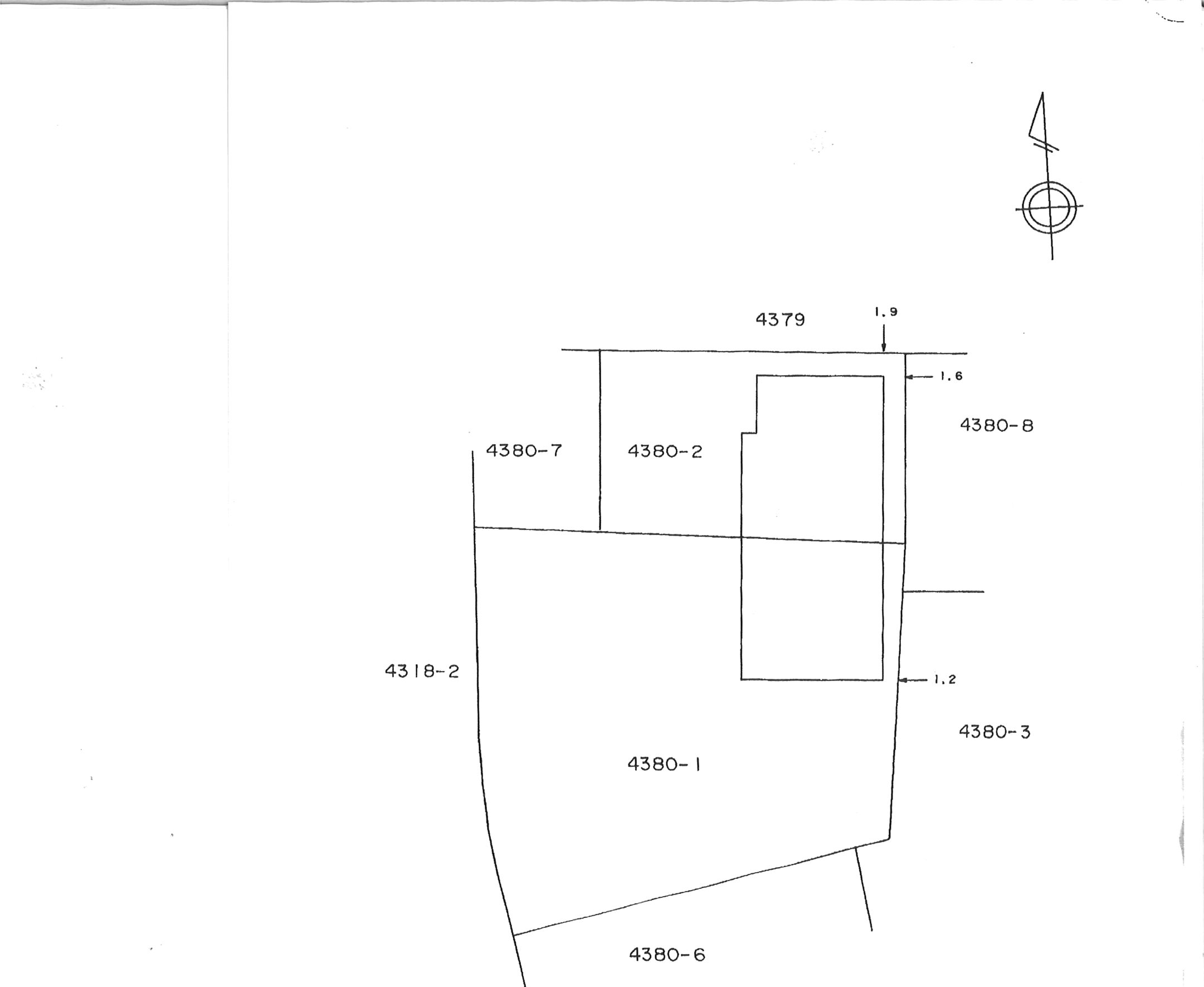
物件詳細
| 物件名 | 20m道路沿い売り店舗 |
| 所在地 | 諏訪郡下諏訪町西赤砂4380 |
| 坪数(土地面積) | 1357.09㎡ 410.52坪 |
| 価格 | 6,000万円 |
| 地目 | 宅地 |
| 建ぺい率 | 80% |
| 容積率 | 200% |
| 道路(接道) | 北側公道20m×西側公道4m |
| 設備 | 電気、ガス、上下水道 |
| 用途地域 | 近隣商業地域 |
| 現況 | 店舗盛業中 |
| 土地権利 | 所有権 |
| 建物面積 | 253.10m² |
| 建物構造 | 鐵骨造亜鉛メッキ鋼板葺き平屋建1棟 |
| 間取り | 店舗76.56坪 |
| 築年数 | 平成12年 |
| 駐車場 | 20台 |
| 階数 | 1階 |
| 備考 | 近隣商業地域:近隣店舗盛業中 |
| 有限会社下諏訪不動産 長野県諏訪郡下諏訪町4726-24 |
![]() |





